< Retour

T2 RECENT

Prix 159 000
Ref PKVAP2510040212

Description de l'offre

EN EXCLUSIVITE, sur la commune d’Auzeville Tolosane, Idéal étudiant ou primo accédant, T2 de 45 m² au 2ème et DERNIER ETAGE AVEC ASCENSEUR, norme BBC avec terrasse privative de 6.50 m² sans vis-à-vis, dans une résidence sécurisée de 2014.

Bien vendu libre de tout occupation

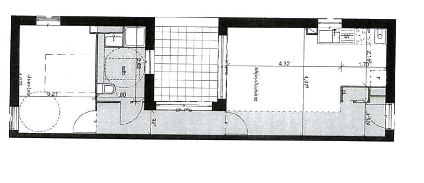
Le bien se compose :

- d'une belle entrée avec placard intégré


- d'une pièce de vie de 24m² exposée Est donnant sur la terrasse sans vis à vis
avec une cuisine ouverte équipée (meubles hauts et bas, plaque de cuisson, un four intégré, une hotte aspirante)


- d’une chambre de 11.60 m² avec placard intégré à double exposition sud et est.

- d'une salle d'eau moderne avec douche, meuble vasque, sèche serviette et wc.

- d'une place de parking privative en sous-sol

- Local vélo et espace moto à disposition

Chauffage au gaz individuel avec chaudière à condensation faible consommation

L’environnement :
-200m du Bus Tisséo L6 (desservant le métro ligne B en moins de 10 mns)

-600m de l’école INP AGRO, et du lycée agricole des sciences vertes

-1.5kms du canal du midi

-10 mns de Airbus Defence and Space, Labège Enova et toutes les écoles (INP Toulouse, ESG,

- Gare SNCF Toulouse Matabiau facilement accessible en métro

-Faculté de Rangueil, et Paul Sabatier à moins de 10 min en voiture, en métro ou vélo.

Les plus de cet appartement :

Idéalement situé

Logement récent et lumineux sans vis à vis

Place de parking privative en sous sol et résidence sécurisée


Charges et copropriété :

-Bien soumis au statut juridique de la Copropriété.

-Nb de lots : 54

- Charges de Copropriété : 104€/mois
- Taxe Foncière : 834€/an

Pas de procédure en cours

Selon l'article L.561.5 du Code Monétaire et Financier, pour l'organisation de la visite, la présentation d'une pièce d'identité vous sera demandée.

Les informations sur les risques auxquels ce bien est exposé sont disponibles sur le site Géorisques : www.georisques.gouv.fr.

Annonce proposée par un consultant collaborateur

Contacter

PERROT KARINE 0613666395 kperrot.immo@gmail.com
Voir les biens

Description du bien

2
Pièces
45
1
Chambre
Label Value
Code postal 31520
Surface habitable (m²) 45 m²
Surface loi Carrez (m²) 45,11 m²
Nombre de chambre(s) 1
Nombre de pièces 2
Etage 2
Ascenseur OUI
Label Value
Nb de salle de bains 1
Cuisine AMERICAINE
Type de cuisine SEMI-EQUIPEE
Mode de chauffage Gaz, Gaz de ville
Type de chauffage Radiateur, Radiateur
Format de chauffage Individuel, Individuel
Interphone OUI
Terrasse OUI
Cave NON
Exposition SUD-EST
Label Value
Copropriété NON
Quote Part annuelle des charges 1 254 €
plan de sauvegarde NON
statut du syndic pas de procédure en cours
Label Value
Prix de vente 159 000 €
Les honoraires d'agence seront intégralement à la charge du vendeur  
DPE
DPE

Montant estimé des dépenses annuelles d'énergie de ce logement pour un usage standard est compris entre 740 € et 1 060 € . 2023 étant l'année de référence des prix de l'énergie utilisés pour établir cette estimation.

Label Value

Contacter le consultant

* Champs obligatoires

* : Les informations recueillies sur ce formulaire sont enregistrées dans un fichier informatisé par La Boite Immo agissant comme Sous-traitant du traitement pour la gestion de la clientèle/prospects de l'Agence / du Réseau qui reste Responsable du Traitement de vos Données personnelles. La base légale du traitement repose sur l'intérêt légitime de l'Agence / du Réseau. Elles sont conservées jusqu'à demande de suppression et sont destinées à l'Agence / au Réseau. Conformément à la loi « informatique et libertés », vous disposez des droits d’accès, de rectification, d’effacement, d’opposition, de limitation et de portabilité de vos données. Vous pouvez retirer votre consentement à tout moment en contactant directement l’Agence / Le Réseau. Consultez le site https://cnil.fr/fr pour plus d’informations sur vos droits. Si vous estimez, après avoir contacté l'Agence / le Réseau, que vos droits « Informatique et Libertés » ne sont pas respectés, vous pouvez adresser une réclamation à la CNIL. Nous vous informons de l’existence de la liste d'opposition au démarchage téléphonique « Bloctel », sur laquelle vous pouvez vous inscrire ici : https://www.bloctel.gouv.fr Dans le cadre de la protection des Données personnelles, nous vous invitons à ne pas inscrire de Données sensibles dans le champ de saisie libre.
Ce site est protégé par reCAPTCHA, les Politiques de Confidentialité et les Conditions d'Utilisation de Google s'appliquent.

Nos outils

Ajouter à ma selection
Calculette Financière
Imprimer la fiche

Partager le bien

Facebook
Twitter
E-mail

La ville de Ramonville-Saint-Agne