< Retour

À vendre 100 000 € à Toulouse : appartement avec terrasse et garage sous-sol

Prix 100 000
Ref LSVAP890024720

Description de l'offre

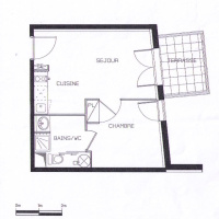
À Toulouse 31200, chemin de la croix bénite, devenez propriétaire d'un 2 pièces avec une charmante terrasse de 5m² et d'un garage privatif en sous-sol.La date de construction : 2012.Tout électrique avec cumulus. Il s'agit d'un appartement se trouvant au rez-de-chaussée sur-élevé vue jardin et sécurisé. Ce type de logement est parfaitement adapté à un premier achat immobilier que cela soit pour la résidence principale ou un investissement locatif. L'espace intérieur comprend une salle d'eau, d'un Wc séparé, une pièce à vivre 16.39m² avec un espace kitchenette équipée, une chambre avec placard. Sa superficie intérieure habitable développe 31m² en loi Carrez. Le calme du lieu est assuré grâce aux fenêtres à double vitrage. Dehors, l'habitation s'accompagne d'une terrasse d'une surface de 5m², ce qui porte la surface à vivre à 36m². Le prix s'élève à 100 000 euros incluant les frais d'agence au forfait de 5 000€ à la charge acquéreur soit 95 000.00€ net vendeur. L'appartement est vendu sans locataire. Le règlement de copropriété accepte les sociétés qui ne reçoivent pas de public, sans nuisance, et sans matériel toxique. Ce bien est situé à 200m des commerces et services du centre ville de Aucamville.Transaction ouverte aux partenariats: mandat de recherche, mandat de délégation, etc Vendu libre de toute occupation.
--------------------------------------------------------------------C'est l'immobilier d'habitation dans l'ancien, le neuf et le réhabilité pour votre résidence principale, secondaire et l'investissement locatif. C'est votre agence à la carte! Prestations de géobiologie et diagnostics d'expositions aux ondes néfastes d'un bien ou d'un terrain. Possibilité d'étude financière pour le financement d'un bien ou de rénovation.
Votre domicile est-il exposé aux ondes électromagnétiques hautes et basses fréquences sans le savoir ?
Nous vivons entourés d’ondes invisibles qui peuvent perturber notre bien-être, notre santé
Diagnostic-Exposition-Ondes-Habitat
Diagnostic-Conseils Préconisation de protection sur Mesure pour un habitat sain





Annonce proposée par un consultant collaborateur

Contacter

Le Garff Sandrine 06 519 501 19 lagencessi@gmail.com
Voir les biens

Description du bien

2
Pièces
31
1
Chambre
Label Value
Code postal 31200
Surface habitable (m²) 31 m²
Surface loi Carrez (m²) 31 m²
Nombre de chambre(s) 1
Nombre de pièces 2
Nombre de niveaux 5
Ascenseur OUI
Vue sans vis à vis
Label Value
Nb de salle d'eau 1
Cuisine KITCHENETTE
Type de cuisine EQUIPEE
Mode de chauffage Autre
Type de chauffage Autre
Format de chauffage Individuel
Interphone OUI
Balcon NON
Terrasse OUI
Nombre de garage 1
Cave NON
Exposition EST
Année de construction 2012
Quartier TOULOUSE- AUCAMVILLE
Label Value
Copropriété OUI
Lot n° 005
nombre de lots 45
plan de sauvegarde NON
statut du syndic pas de procédure en cours
Label Value
Prix de vente honoraires TTC inclus 100 000 €
Prix de vente honoraires TTC exclus 95 000 €
Honoraires TTC à la charge acquéreur 5,26 %
Dépôt de garantie TTC 400 €
Charges 57 €
Taxe foncière annuelle 680 €
DPE
DPE
DPE ANCIENNE VERSION
Label Value

Contacter le consultant

* Champs obligatoires

* : Les informations recueillies sur ce formulaire sont enregistrées dans un fichier informatisé par La Boite Immo agissant comme Sous-traitant du traitement pour la gestion de la clientèle/prospects de l'Agence / du Réseau qui reste Responsable du Traitement de vos Données personnelles.
La base légale du traitement repose sur l’intérêt légitime de l'Agence / du Réseau.
Elles sont conservées jusqu'à demande de suppression et sont destinées à l'Agence / au Réseau.
Conformément à la loi « informatique et libertés », vous pouvez exercer votre droit d'accès aux données vous concernant et les faire rectifier en contactant l'Agence / le Réseau.
Si vous estimez, après avoir contacté l'Agence / le Réseau, que vos droits « Informatique et Libertés » ne sont pas respectés, vous pouvez adresser une réclamation à la CNIL.
Nous vous informons de l’existence de la liste d'opposition au démarchage téléphonique « Bloctel », sur laquelle vous pouvez vous inscrire ici : https://www.bloctel.gouv.fr 
Dans le cadre de la protection des Données personnelles, nous vous invitons à ne pas inscrire de Données sensibles dans le champ de saisie libre
Ce site est protégé par reCAPTCHA, les Politiques de Confidentialité et les Conditions d'Utilisation de Google s'appliquent.

Nos outils

Ajouter à ma selection
Calculette Financière
Imprimer la fiche

Partager le bien

Facebook
Twitter
E-mail

La ville de Toulouse