
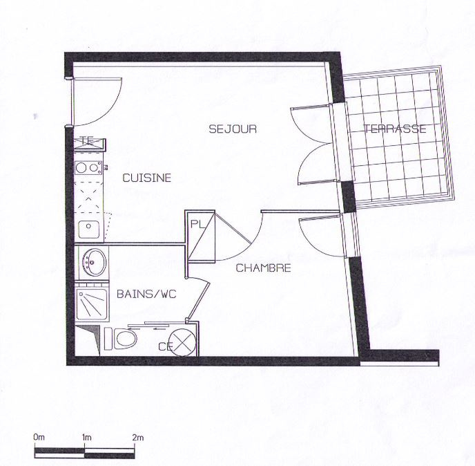
À Saint Orens de Gameville, appartement T2 avec jardin et...
Appartement
43 m²
2 Pièces - Saint-Orens-de-Gameville