< Retour

Propriété grand confort, piscine couverte et divers

Prix 495 000
Ref CCVPR290040488

Description de l'offre

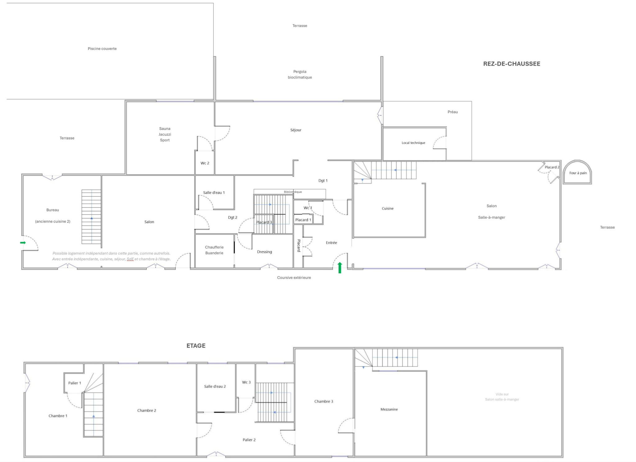
Aux portes de CHATEAUBRIANT (4,5km), Maison de caractère d’env. 260m² au sol (3/4 chambres, 2 habitations possibles), offrant grand confort dont piscine couverte, sauna, jacuzzi, marcheur, terrasses, grande pièce de vie, PAC géothermie, double-vitrage, volets électriques, fibre internet, système de protection, garages fermés, carport, etc…). Ensemble en très bel état, rigoureusement entretenu (avec dossier de factures d’artisans et architecte). La Maison est composée au rez-de-chaussée d’un hall d’entrée avec rangement, grande pièce de vie (69m² / grande hauteur sous plafond) avec cuisine ouverte, dégagement avec meuble bibliothèque sur mesure, salle à manger (34m²) ouvrant sur terrasse (pergola bioclimatique + terrasse extérieure et coin barbecue/plancha), petit salon avec cheminée, bureau, lingerie aménagée, buanderie, local détente et sport (jacuzzi, sauna, tapis de marche) communicant avec l’espace baignade couvert de 117m² dont piscine 11 x 5m (chauffée et au sel), salle de douche, 2 WC. À l’étage : Palier, 3 chambres (15 à 21m²) dont une communicante avec la mezzanine (salon TV), salle de douche, WC. Accès à la propriété par portail électrique, parking extérieur + parking invité, garage double fermé, carport voiture, carport camping-car, grange-atelier, remise, puits, four à pain, diverses terrasses, cour, jardin, prairie, … Offre de grande qualité. TF : 2 049 €. CHATEAUBRIANT (tous services et commodités : gare, hôpital, lycées, centres commerciaux, cinéma, …) à 5mn / RENNES 38mn / NANTES 45mn /  REDON 50mn / ANGERS & LAVAL 1h05 / Plages à partir d’1h15 (LA BAULE). Possibilité de relier NANTES et RENNES en train-tram. Complément (photos / infos) et visite sur demande référencée. Cette offre exclusive vous est présentée par DEMEURES & CARACTÈRE, une marque du Cabinet RETZ IMMOBILIER ; Agence spécialiste de l'immobilier de Caractère, Atypique, Rural, Équestre, d'Exception et de Prestige dans les villes, villages, campagnes et sur le littoral de Loire-Atlantique, Morbihan, Vendée et les départements limitrophes. @MNNRICD. Réf. mandat exclusif : 110939-000000. Contact : Chris DUBOIS.

Annonce proposée par un consultant collaborateur

Contacter

Cabinet Retz-Immobilier Chris Dubois 0611422552 cabinet-retz-immobilier@outlook.fr
Voir les biens

Description du bien

8
Pièces
260
3
Chambres
Label Value
Code postal 44110
Surface habitable (m²) 260 m²
surface terrain 6 830 m²
Nombre de chambre(s) 3
Nombre de pièces 8
Nombre de niveaux 1
Label Value
Nb de salle de bains 2
Mode de chauffage Géothermie
Type de chauffage Au sol
Format de chauffage Central
Terrasse OUI
Nombre de garage 4
Nombre de parking 2
Année de construction 1900
Label Value
Copropriété NON
Label Value
Prix de vente 495 000 €
Les honoraires d'agence seront intégralement à la charge du vendeur  
Taxe foncière annuelle 2 049 €
DPE
DPE

Montant estimé des dépenses annuelles d'énergie de ce logement pour un usage standard est compris entre 1 670 € et 2 300 € . 2000 étant l'année de référence des prix de l'énergie utilisés pour établir cette estimation.

Label Value

Contacter le consultant

* Champs obligatoires

* : Les informations recueillies sur ce formulaire sont enregistrées dans un fichier informatisé par La Boite Immo agissant comme Sous-traitant du traitement pour la gestion de la clientèle/prospects de l'Agence / du Réseau qui reste Responsable du Traitement de vos Données personnelles. La base légale du traitement repose sur l'intérêt légitime de l'Agence / du Réseau. Elles sont conservées jusqu'à demande de suppression et sont destinées à l'Agence / au Réseau. Conformément à la loi « informatique et libertés », vous disposez des droits d’accès, de rectification, d’effacement, d’opposition, de limitation et de portabilité de vos données. Vous pouvez retirer votre consentement à tout moment en contactant directement l’Agence / Le Réseau. Consultez le site https://cnil.fr/fr pour plus d’informations sur vos droits. Si vous estimez, après avoir contacté l'Agence / le Réseau, que vos droits « Informatique et Libertés » ne sont pas respectés, vous pouvez adresser une réclamation à la CNIL. Nous vous informons de l’existence de la liste d'opposition au démarchage téléphonique « Bloctel », sur laquelle vous pouvez vous inscrire ici : https://www.bloctel.gouv.fr Dans le cadre de la protection des Données personnelles, nous vous invitons à ne pas inscrire de Données sensibles dans le champ de saisie libre.
Ce site est protégé par reCAPTCHA, les Politiques de Confidentialité et les Conditions d'Utilisation de Google s'appliquent.

Nos outils

Ajouter à ma selection
Calculette Financière
Imprimer la fiche

Partager le bien

Facebook
Twitter
E-mail

La ville de Châteaubriant