< Retour

LOCATION – BUREAUX OPEN-SPACE 82 m² – VERGÈZE (ZAC DE LA MONTÉE ROUGE)

Prix 1 000 € / mois
Ref TPLCO510031354

Description de l'offre

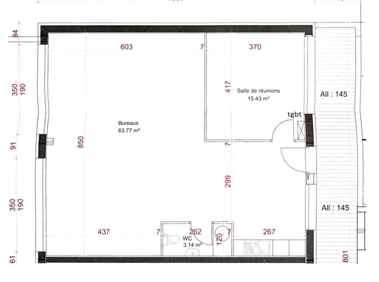
LOCATION Dans un immeuble neuf de la ZAC de la montée rouge à Vergèze, en r+1 un bureau open-space de 82 m² avec coin cuisine à louer à partir du 01 février 2026.

Dans un immeuble neuf situé dans la ZAC de la Montée Rouge à Vergèze, au 1er étage (R+1), bureau en open-space d’une surface d’environ 82 m² avec coin cuisine, disponible à la location à compter du 1er février 2026.

Les locaux, d’une surface totale de 82 m², se composent :

>> d’un plateau ouvert de bureaux (open-space),

>> d’une salle de réunion indépendante ou bureau fermé,

>> d’un espace cuisine,

>> de sanitaires (WC).

Loyer annuel : 12 000 € HT HC, soit 1 000 € HT HC / mois
Charges et provision TF : 120 € / mois

La ZAC / ZA de la Montée Rouge est une zone d’activités mixtes accueillants entreprises, deux crèches, petits commerces, services, artisanat, loisirs ainsi qu’un centre paramédical.

Sa situation géographique permet un accès rapide aux grands axes autoroutiers, la zone se situant à proximité immédiate de la route départementale 113 et à approximativement cinq minutes de l’échangeur du péage de Gallargues-le-Montueux pour accéder à l’autoroute A9. La Montée Rouge constitue ainsi un choix stratégique pour les entreprises souhaitant s’implanter entre Montpellier et Nîmes.

Caution : 2 mois de loyer (exonéré de TVA)
Honoraires locataire : 1 440 € HT

VPI@VIP Immo Commercial – Patricia TOMATIS – Vergèze
Tél. : 06 09 02 51 87

Annonce proposée par un consultant collaborateur

Contacter

Tomatis Patricia 0609025187 tompatrimo@gmail.com
Voir les biens

Description du bien

3
Pièces
82
Label Value
Type de transac Bureaux
Code postal 30310
Surface habitable (m²) 82 m²
Nombre de pièces 3
Nombre de niveaux 1
Superficie (m²) 82
Label Value
Mode de chauffage Climatisation
Type de chauffage TRAD_TYPE_CHAUFF_AIR_EAU
Format de chauffage Individuel
Label Value
Loyer HT 1 000 € / mois
Honoraires HT charge locataire 1 440 €
Dont état des lieux 500 €
Dépot de garantie 2 000 €
Charges locatives HT (provision donnant lieu à régularisation annuelle) 120 €
Bail Commercial
Echéance du bail 2032-02-01
Label Value
type d'activité - Divers
DPE
DPE
DPE ANCIENNE VERSION
Label Value

Contacter le consultant

* Champs obligatoires

* : Les informations recueillies sur ce formulaire sont enregistrées dans un fichier informatisé par La Boite Immo agissant comme Sous-traitant du traitement pour la gestion de la clientèle/prospects de l'Agence / du Réseau qui reste Responsable du Traitement de vos Données personnelles. La base légale du traitement repose sur l'intérêt légitime de l'Agence / du Réseau. Elles sont conservées jusqu'à demande de suppression et sont destinées à l'Agence / au Réseau. Conformément à la loi « informatique et libertés », vous disposez des droits d’accès, de rectification, d’effacement, d’opposition, de limitation et de portabilité de vos données. Vous pouvez retirer votre consentement à tout moment en contactant directement l’Agence / Le Réseau. Consultez le site https://cnil.fr/fr pour plus d’informations sur vos droits. Si vous estimez, après avoir contacté l'Agence / le Réseau, que vos droits « Informatique et Libertés » ne sont pas respectés, vous pouvez adresser une réclamation à la CNIL. Nous vous informons de l’existence de la liste d'opposition au démarchage téléphonique « Bloctel », sur laquelle vous pouvez vous inscrire ici : https://www.bloctel.gouv.fr Dans le cadre de la protection des Données personnelles, nous vous invitons à ne pas inscrire de Données sensibles dans le champ de saisie libre.
Ce site est protégé par reCAPTCHA, les Politiques de Confidentialité et les Conditions d'Utilisation de Google s'appliquent.

Nos outils

Ajouter à ma selection
Calculette Financière
Imprimer la fiche

Partager le bien

Facebook
Twitter
E-mail

La ville de Vergèze